The Gite de l'Aselle. Authentic Norman cottage between the Seine and Bray | Cottage in Le Héron

3 Bedroom Cottage in Le Heron, Le Héron
Le Gîte de l'Aselle: Your perfect Norman escape
dreaming of a charming getaway surrounded by nature? Nestled in the heart of the picturesque Héronchelles Valley in Normandy, Le Gîte de l'Aselle welcomes you to an authentic, independent Norman thatched cottage. This true haven of peace, set within a magnificent 1000 m² wooded plot, offers an idyllic setting to recharge and enjoy the surrounding natural beauty, far from the everyday hustle and bustle.
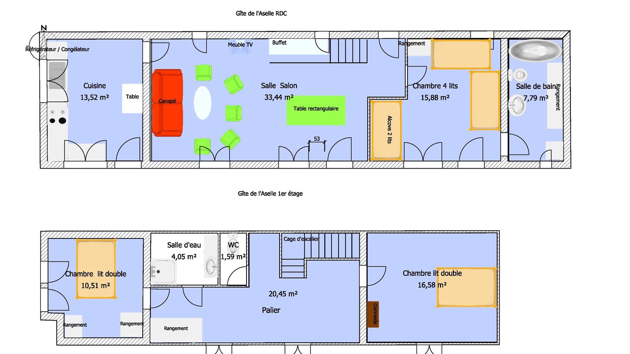
A Cozy and Comfortable Haven for 8 Guests
Let yourself be charmed by the warm atmosphere and unique character of this delightful cottage, typical of the region. Le Gîte de l'Aselle can accommodate up to 8 people, making it the ideal spot for family vacations or trips with friends. Fully equipped, it promises a most pleasant stay, combining rustic charm with modern comfort. Imagine relaxing in the lush green garden or sharing convivial meals in an authentic setting.
Your Ideal Base for Exploring Normandy
Le Gîte de l'Aselle boasts a privileged location, making it the perfect starting point for discovering Normandy's treasures:
• In the Heart of Nature: Immerse yourself in the verdant landscapes of three surrounding valleys, perfect for invigorating walks and scenic picnics.
• A Stone's Throw from "France's Most Beautiful Villages": Explore Lyons-la-Forêt, a Norman gem where time seems to stand still.
• Historical Heritage Within Reach: Discover iconic sites such as the Manoir de Malvoisine, Saint-Michel du Héron Church, or the majestic Château de Martainville and Vascoeuil. Enjoy the visit of Rouen, capital of the Normandy.
• Hikers' Paradise: Explore numerous marked trails and marvel at the authentic beauty of the Norman landscapes.
• Easy Access to Legendary Coasts: Less than 100 km away, discover iconic seaside resorts such as Deauville with its famous boardwalk, the majestic cliffs of Étretat, and the authentic charm of the fishing village of Yport. Honfleur and Étretat are also just 1 hour away!
• Exceptional Accessibility: Located just 1 hour from Paris (on the Rouen-Paris axis), the gîte is ideal for a weekend escape or day trips to the capital.
Book Your Authentic Experience
Le Gîte de l'Aselle is more than just accommodation; it's an invitation to live an authentic and unforgettable experience in Normandy. Whether you're seeking tranquility, adventure, cultural discovery, or the charms of the coast, this cottage is the perfect address for you.
Don't wait! Book your stay at Le Gîte de l'Aselle now and create cherished memories in the heart of Normandy.
The Gite de l'Aselle Authentic Norman cottage between the Seine and Bray is located in Le Heron. The Gite de l'Aselle Authentic Norman cottage between the Seine and Bray provides accommodation, featuring Wellness Facilities, Fireplace/Heating, Child Friendly, among other amenities. This Cottage features Wellness Facilities, Fireplace/Heating, Child Friendly, to make your stay a comfortable one.
The Gite de l'Aselle Authentic Norman cottage between the Seine and Bray has 3 Bedrooms , 2 Bathrooms, and max occupancy of 8 people. The minimum rental for this property is 1 nights, but this can change depending on the season you plan on staying. Previous guests have given good rated it, and VRBO labeled it a top-rated Cottage because of the excellent services rendered by the owner or manager of this Cottage, and has consistently provided great experiences for their guests. Most families or guests that use it recommend it to their friends and some of them are repeat guests. Cottage has a friendly neighborhood, and the Le Heron has interesting places to visit. If you want to learn more about the Cottage in Le Heron, such as places to visit and things to do nearby, you can check below to learn more.
Amenities
Policies
Extra-person charges may apply and vary depending on property policy government-issued photo identification and a credit card, debit card, or cash deposit may be required at check-in for incidental charges host has indicated there are no carbon monoxide detectors or gas appliances on the property host has indicated there is a smoke detector on the property onsite parties or group events are strictly prohibited safety features at this property include a fire extinguisher special requests are subject to availability upon check-in and may incur additional charges; special requests cannot be guaranteed this property is managed through our partner, vrbo. you will receive an email from vrbo with a link to a vrbo account, where you can change or cancel your reservation